Lease opportunity: medical practice with three treatment rooms

Medical practice with three treatment rooms

The location:

Munich Airport is offering a medical practice for lease in the vibrant Munich Airport Center (MAC). The practice is located in the Medical Center in the Munich Airport Center, MAC Sud, Level 06.

The established medical center with 10 specializations is situated at the heart of Germany's second-largest airport. A total of approximately 35,000 people work at Munich Airport.

The practice:

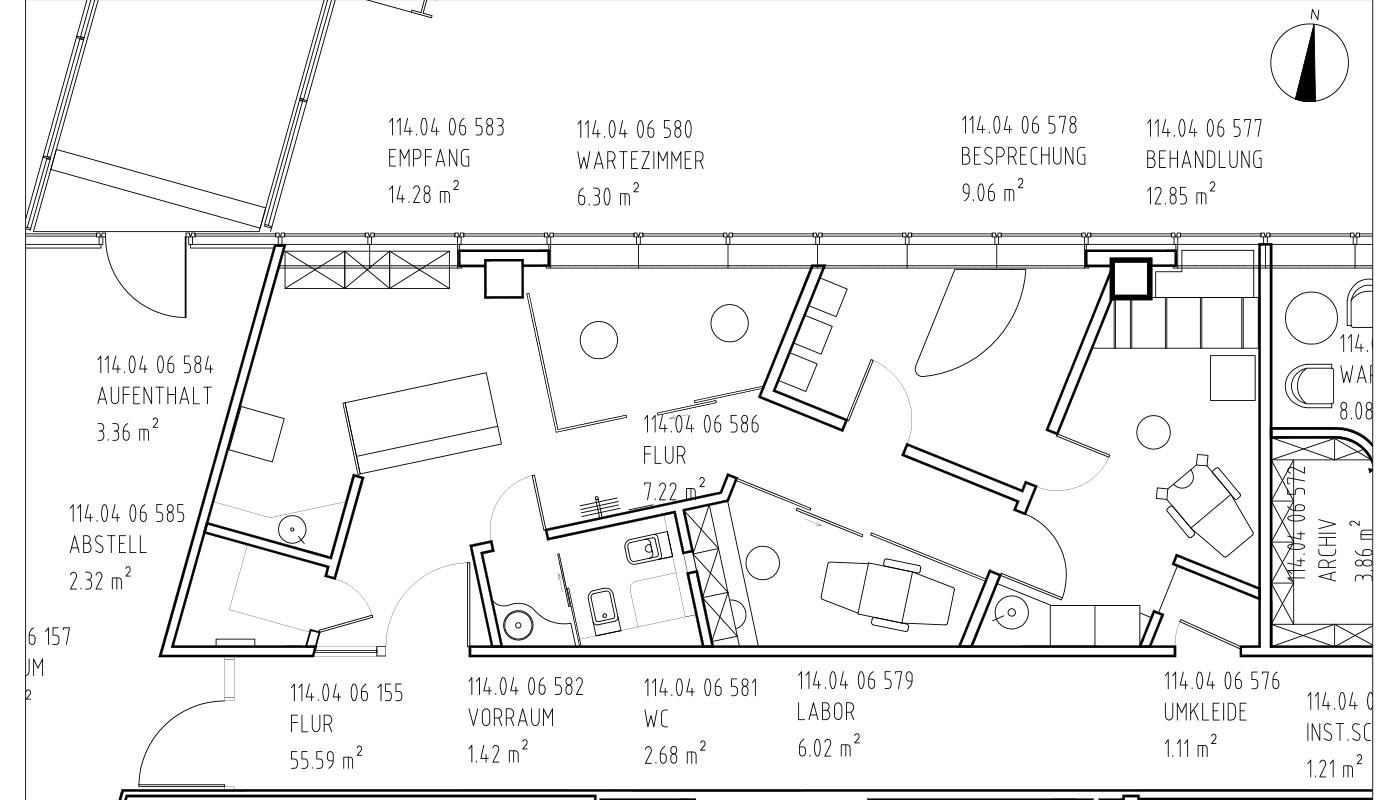
The approx. 70 square meter practice area can be offered for the following specializations:

  • Gynaecology (non-surgical)
  • Pediatrics
  • Neurology
  • Psychiatry
  • ENT

Images of the practice

  • Floor plan of the available medical practice in the MAC
  • In the Munich Airport Center (MAC) you will have an excellent location. The medical center also offers ideal surroundings for your work

Ihr Ansprechpartner

Real Estate Marketing & Sales

  • Street Nordallee 54
  • Zip code / City 85356 Munich Airport